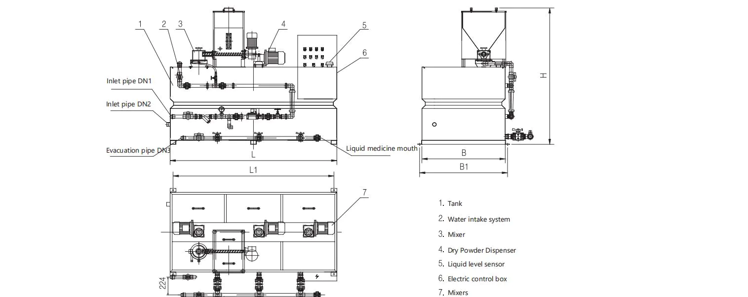
1. 3 Čimbenici koji utječu na točnost Integrirani uređaji za doziranje
Prije optimizacije morate razumjeti koji će čimbenici uzrokovati fluktuacije doziranja:
Stabilnost mjernih pumpi
Nošenje pumpe, pulsacija ili odstupanje od kalibracije uzrokovat će pogreške u protoku.
Točnost niskokvalitetnih mjernih pumpi znatno će pasti nakon dugotrajnog rada.
Pogreške u sustavu senzora i upravljanja
PH/ORP senzor, podaci mjerača protoka su netočni.
PLC ili PID kontrolni parametri nisu optimizirani, a odgovor se odgađa.
Karakteristike reagensa i problemi s cjevovodom
Sredstva visoke viskoznosti skloni su neravnomjernom blokadi crpljenja ili kristalizacije cjevovoda.
Promjene propuštanja cjevovoda ili povratnog tlaka utječu na stvarnu dozu.
2. 3 KLJUČNE METODE za poboljšanje točnosti doziranja
- Metoda 1: Kalibriranje pumpi i senzora za mjerenje
Koraci operacije:
Redovito kalibrirajte pumpe za mjerenje:
Upotrijebite standardni mjerni cilindar za mjerenje izlaznog protoka, usporedbu s postavljenom vrijednošću i podešavanje udara ili frekvencije.
Preporučuje se kalibriranje jednom mjesečno, a industrija s visokim preciznim zahtjevima može se skraćivati na tjedno.
Provjerite podatke senzora:
PH/ORP elektrode treba kalibrirati sa standardnim puferom (poput pH4.0/7.0/9.2).
Mrakter protoka može se provjeriti ultrazvučnom usporedbom metra protoka.
- Metoda 2: Optimizirajte parametre upravljačkog sustava
Stavke prilagodbe ključa:
Postavljanje PID parametra:
Proporcionalni pojas (P): Smanjenje ga može ubrzati odgovor, ali pretjerano će uzrokovati oscilaciju.
Integralno vrijeme (i): Eliminirajte statičke pogreške, ali postavljanje predugog odgađanja će odgoditi podešavanje.
Derivatno vrijeme (D): suzbijajte prekomjernu i prikladnu su za sustave s velikim zaostajanjem.
Usvojite algoritam adaptivne kontrole:
Za scenarije s velikim fluktuacijama kvalitete vode (poput obrade kanalizacije) može se koristiti nejasna kontrola ili kontrola prediktivnog modela (MPC).
Preporuka alata:
Koristite funkciju samo-podešavanja PLC ili DCS sustava.
- Metoda 3: Poboljšajte dizajn cjevovoda farmaceutskih isporuka
Plan optimizacije:
Smanjite otpor cjevovoda:
Skratite duljinu cjevovoda, izbjegavajte laktove s pravim kutom i umjesto toga koristite velike radijus zakrivljenosti.
Lijekovi visoke viskoznosti zahtijevaju cjevovode velikog promjera (DN≥25 mm).
Spriječite kristalizaciju/smetnje mjehurića:
Ugradite uređaj za ispiranje vode u cjevovodu lako kristaliziranih reagensa (poput limunske kiseline).
Postavite ispušni ventil na vrhunskoj točki cjevovoda kako bi se spriječilo da blokada zraka utječe na brzinu protoka.
Odaberite pravi materijal:
Koristite PVDF ili 316L cijevi od nehrđajućeg čelika za korozivne reagense (poput natrijevog hipoklorita).
3. Vodič za sigurnost, održavanje i optimizacija integriranih biljaka doziranja
Specifikacije sigurnosnog rada
Provjerite prije početka
Potvrdite da je napon napajanja u skladu sa zahtjevima opreme (380V/220V)
Provjerite razinu tekućine spremnika kako biste izbjegli suhi rad i oštećenje tijela pumpe
Provjerite status ventila za cjevovod (otvoren ulaz/otvoren ventil za ispušnu snagu/ispušni ventil)
Kemijska sigurnost
Korozivne kemikalije (poput klorovodične kiseline, natrijevog hipoklorita):
Nosite rukavice i naočale protiv korozije tijekom rada
Alarmi protiv propusta i uređaji za ispiranje u hitnim slučajevima moraju biti instalirani u prostoriji za doziranje
Zapaljive kemikalije (poput metanola):
Zabranjeno je koristiti otvoreni plamen ili električne uređaje otporne na eksploziju u području doziranja
Spremnik za odlaganje mora biti uzemljen kako bi se spriječio statički elektricitet
Hitno liječenje
Zaustavite stroj odmah ako se nađe curenje i zatvorite ulazne i izlazne ventile
U slučaju električnog kvara, prekinite napajanje prije popravka
Prevencija uobičajenih problema
Netočno doziranje
Mogući uzroci:
Oštećenje dijafragme pumpe za mjerenje
Nepravilno podešavanje ventila za povratni tlak
Podaci senzora
Otopina:
Kalibrirajte crpku i senzor prema prethodnoj metodi
Ugradite mjerač tlaka za praćenje povratnog tlaka cjevovoda (preporučljivo je održavati 0,2-0,3MPA)
Nenormalna buka pumpe
Kavitacijski zvuk → Provjerite je li ulazni filter blokiran
Mehanički zvuk trenja → Provjerite podmazivanje ležaja spojnih šipki
Alarm upravljačkog sustava
Alarm "niska razina tekućine": Provjerite je li float prekidač ili kapacitivni mjerač razine tekućine
Alarm "preopterećenje": Provjerite da li struja motora prelazi granicu
4. FAQ Integrirano FAQ (često postavljana pitanja)
- Što treba napomenuti tijekom instalacije?
Naftovod bi trebao biti kratak, izbjegavati savenje u pravom kutu i smanjiti otpor.
Filter Y-tipa (jaz 0,3 mm) trebao bi biti instaliran na ulazu reagensa kako bi se spriječilo začepljenje nečistoćama.
Električno ožičenje mora udovoljiti zahtjevima otpornim na eksploziju, a korozivno okruženje mora biti zapečaćeno.
- Kako riješiti nenormalno tekuće usisavanje pumpe za mjerenje?
Provjerite je li ulazni cjevovod blokiran ili curi i zategnite vezu.
Podesite udar na 100% i osigurajte da su rupe za odvodnje na stražnjoj ploči poravnane.
Kad širina impulsa nije dovoljna, može se proširiti na 300 ms da bi se poboljšala stabilnost.
- Uobičajene greške i rješenja:
| Fenomen grešaka | Mogući uzroci | Rješenja |
| Nestabilan protok | Ulazna cijev blokirana/ulazi u plin | Čisti filter, ispuh |
| Sigurnosni ventil često izleti | Nepravilno postavljanje tlaka u oprugu/prenatpon sustava | Podesite oprugu ili provjerite postavku tlaka |
| Nenormalna buka pumpe | Oštećenje dijafragme/zagađenje hidrauličkim uljem | Zamijenite dijafragmu ili hidraulično ulje |

















